The stunningly designed house is built over four floors providing a spacious contemporary holiday home with sea views from all main rooms, including 180 degree panoramic views from the sun room also 90 degree views from two bedroom suites. The house has an attractive outside seating area with large summer house, making a perfect spot to enjoy evening meals whilst watching the sun go down over the Screel Hill which makes the back drop to the estuary. There is access to both Jubilee Path and also the Rough Firth road which both provide access to a network of scenic pathways over National Trust of Scotland land to Rockcliffe. The village centre is a short walk with its slipway, sailing facilities, coastal walks, gift shop and two pubs, both of which serve food. In addition it is only 2 miles from the 7Stanes mountain bike trail in Dalbeattie Forest and only a short drive to numerous sandy beaches, Galloway Forest Park, loch and river fishing, hill walking, golf courses and other attractions in the area.
Post Code: DG5 4LW
Damage Deposit £250 (Unfortunately we are unable to facilitate the Damage Waiver Fee on this property, please select the Refundable Damage Deposit)
Between June and end of October Braesyde is let weekly with either a Friday, Saturday or Sunday arrival.Short breaks are accepted between end of October until beginning of June with an any day arrival (excluding the festive period) and if within 28 days of arrival at all other times.
STL Licence: DG00004F
EPC:D
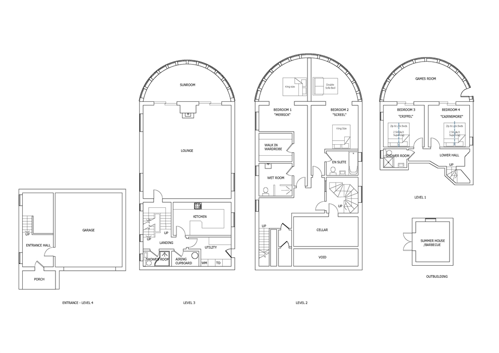
Accommodation for 10 over four floors: Sitting room with wood stove and dining area; Sun room with 180 degree views: kitchen/ breakfast room; Utility room; Shower room; Cloak room: 1 King size bedroom with 90 degree view and with en-suite shower room and dressing room; 1 King size bedroom with en-suite bathroom and sitting room with double sofa bed and enjoys 90 degree view ; 2 bedrooms with Zip n Link beds which can be either set up as a twin or King size, please let us know when booking; Shower Room adjacent to both; Games room lounge with views. Garage for bike/canoe/golf club storage.
Services: Central heating * Wood stove with logs included * Bed linen and towels are included * Washing machine and Drier * Dishwasher * Fridge/Freezer * Electric cooker * Microwave * 5 T.V's * Full Sky package * DVD Player * Wi-fi * CD player * Cot and High Chair * Parking 3 cars * Enclosed garden * Garden furniture * BBQ * 2 Pets welcome * (Additional charges apply) Walk to restaurant* NO SMOKING
Note: Steep steps to garden.