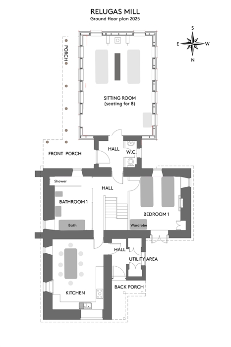
The former miller's cottage was built over two hundred years ago which has been modernised and has been extended to make a spacious light and airy family holiday cottage. The cottage has recently been further extended to provide a large sitting room complementing the spacious kitchen/dining room and large ground floor twin bedroom with French doors to patio with seating. The ground floor accommodation also includes a spacious bathroom with both bath and walk in shower. The new sitting room has french doors to a full length covered veranda with chairs and table which look out on the large garden and unfenced mill pond. The modernisation of the cottage, with the open fire in the sitingroom, full oil fired central heating and double glazing ensures a warm and cosy holiday.
The surrounding gardens ensure privacy and the house has lovely views over the steep sided Findhorn Valley. A path leads down to a pleasant walk along the river banks, perfect with or with out a dog! A short walk downstream will bring you to Randolph's Leap, but please don't try to emulate his feat!
The shops and restaurants of Forres are only eight miles away. The Whisky Trail and many old castles are nearby, whilst Elgin, Nairn, Inverness, Culloden Moor and the Clan Stones, the basis for television series "The Outlander", Loch Ness and Aviemore are within easy reach. The boundary of the Cairngorms National Park is just 15 miles away.
The local area caters for many outdoor pursuits including fishing, golfing, horse riding, walking and river rafting. Not to be missed are the opportunities for watching dolphins along the Moray coast and also the unspoilt sandy beaches of the Findhorn Bay.
POST CODE: IV36 2QL
Relugas Mill is let weekly Saturday to Saturday. Short breaks are only accepted if booked within 7 days of arrival
Damage Deposit £150
EPC:E
Accommodation for 7 over two floors:
Ground floor: Entrance Hall; Cloakroom with WC and basin; Living room with open fire and French doors to Veranda with seating; Middle hall with stair to first floor; Twin Bedroom with French doors to rear patio with seating; Bathroom with Bath and Walk in Shower; Large kitchen with dining area; Back Hall with Utility area and door to covered rod and boot pull porch.
First floor: Double bedroom; Twin bedroom; Single bedroom and Shower room with walk in shower. .
Services: Central Heating and Electricity include * Open Fire (no fuel provided) * Bed Linen and Towels provided * Washing Machine * Tumble Drier* Dishwasher * Fridge & 3 drawer Freezer * Gas Cooker & Microwave * Telephone * Mobile reception * TV with DVD Player * WiFi * Cot & High Chair * Parking * Unfenced garden with Old Mill Pond, Patio, Furniture and BBQ * Maximum of 2 well behaved dogs allowed.(Additional charges apply).
PLEASE NOTE: The Old Mill Pond is unfenced & within 30 metres of the house
Local Experiences and Activities
Golf
Beach Walk
Mountain walks
Fishing
Skiing
Horse riding
Rafting